利用MODBUS通讯控制方式,采用主从通讯方式(点对多点)在一根通讯线上最多可连接32块DDM4F数码显示表。
DDM4A2主要特点:
● 每一块DDM4A2数码显示表可显示4位数据,显示范围在0000~
9999及扩展5个特殊符号:“-”、“P”、 “L”、“H”、 “E”。它们分
别可用于表示“±”、 “压力”、 “低”、“高”、“错误”等其他符号。
每位数码管的小数点均可以通过PLC程序控制点亮或熄灭,显示精确,
无误差、无零漂、无需计量。
● 可以显示PLC内部数据寄存器中任意的数字。无需将工程量再进行转换,可以在DDM4A2表上直接显示工程数据。例如:采集温度信号为503.3℃,寄存器40001中存放温度采集值为5033的温度数据,40002中存放对应温度的小数点位置数据0002。运行显示子程序后,对应的DDM4A2表上即显示503.3。
● 采用485通讯方式,连接方式主要为:
+485通讯方式:例如FX2N+485-BD、S7 200 RS485自由通讯口;
+232转485通讯方式;
c.计算机组态软件+232转485通讯方式。
● 由于普通PLC均具备串行通讯、编程接口,故可充分利用该口作为多个通讯从站连接,所附加的显示子程序简单,运行速度较快。指令通俗易懂。在不影响人们习惯视觉下极易达到几十块表的同步显示。
装置概述及参数
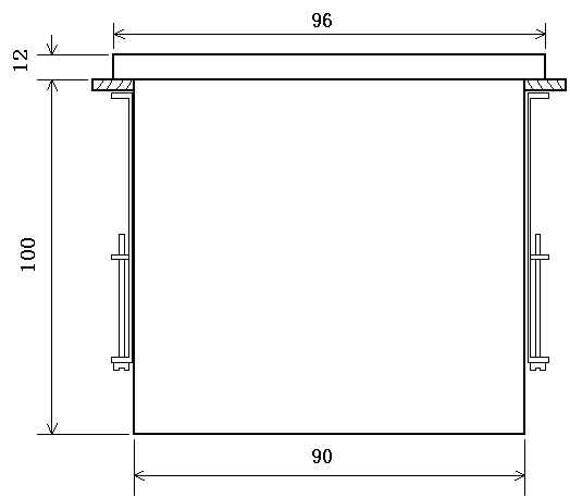
多功能数码显示表是以单片机技术为核心,通过面板上的四位数码管显示多种数字。此表的开孔尺寸为91mm(宽)×43mm(高),此表的几何尺寸见下图所示。

数码显示表的背后接线端子位置和端子号及对应功能见下图和下表。

|
端子号 |
名称 |
功能定义 |
备注 |
|
1 |
A |
RS-485 A线 |
|
|
2 |
B |
RS-485 B线 |
|
|
3 |
C |
终端电阻 |
如果连接数量较多且工作存在干扰,就将C端与B端断接 |
|
4 |
SET |
更改参数值 |
6mA |
|
5 |
SEL |
参数选择 |
6mA |
|
6 |
GND |
电源地 |
|
|
7 |
+V |
内部已经连接+V端 |
必须为漏输入型 |
|
8 |
+V |
正电源输入 |
+5V/44 mA |
通讯协议
数码显示表可接收符合MODBUS RTU方式的通讯协议,实际上它也能被符合DDM4A2数码显示表驱动特性和通讯规约的其他设备所驱动,例如:其他智能设备、DCS系统、单片计算机设备等。
该通讯方式是将PLC程序中任意指定的数据,例如计数器、计时器、数据寄存器等数据送入指定的显示缓冲区内,经通讯子程序控制送至RS-485通讯口上,并经双绞线远传至多块DDM4A2数码显示表上。
本规范适用于任何具备自由通讯功能的PLC或其他设备,详细通讯规约参见MODBUS通讯协议。
DDM4A2数码显示表规定寄存器40001为本站号下数码表显示数据,而40002则为小数点、特殊符号寄存器。其中,40001=04D2H、40002=000DH表示DDM4A2应该显示12.34。
使用方法
a. DDM4A2显示表参数设置:
DDM4A2显示表出厂参数设置为地址1,波特率为9600 bps。如果需要修改参数(2块以上联网则至少必须修改站地址号)则可按以下步骤进行:
- 将DDM4A2表+V端连接于DC5V+正端,注意最好不要超过5.3V。GND联接于DC5V的地端。
- 通电后DDM4A2会按照码段自检显示.、站地址(P XX)、波特率(H XX)然后显示0。
- 瞬间短接GND和SEL,将循环显示站地址、波特率、-.-.-.-.。其中-.-.-.-.为退出提示。
- 需要修改对应参数时,在显示该参数后瞬间短接GND和SET,可以循环改变对应值。
- 修改完数据后,再瞬间短接GND和SEL并显示-.-.-.-.后再瞬间短接GND和SET便退出参数设置,同时DDM4A2会再次按照码段自检显示.、站地址、波特率显示以确认是否修改。
b. 与PLC设备连接
- 与PLC的RS-485编程、通讯口连接,例如西门子S7-200通讯口、莫迪康PLC、三菱FX2N等;
- 与PLC的RS-485通讯模块(板)连接,例如FX2N 485-BD;
- 在PLC程序中设置一显示子程序,利用通讯指令,再利用内部的定时脉冲触点驱动左移寄存器,分时选择各站地址号、数据,以输出规定通讯协议的数据至通讯输出口,即可驱动多块显示表。
c. 与计算机系统连接
- 选择RS-232转485通讯模块(例如本公司的SC-485、SC-485G等)并插入计算机COM1或COM2等均可。
- 使用组态软件,例如组态王、Citect、FIX、INTUCH等软件,选择驱动设备为三菱FX2N PLC。数据位为8位,无校验。波特率与DDM4A1数码表参数相同;
- 根据需要组态各站的标签变量、数据交换区、显示、设置画面等;
- 运行组态软件后,DDM4A2数码表将显示组态软件上的数据。
d. 与其他系统连接
只要有RS-485接口并满足本表协议的其他设备均可以驱动多块数码显示表。数据与显示内容见下表:
|
DDM4A2 显示 |
显示缓冲区 |
显示缓冲区+1 |
|
X X X X |
XXXX |
0 |
|
- X X X |
XXXX |
1 |
|
P X X X |
XXXX |
2 |
|
L X X X |
XXXX |
3 |
|
H X X X |
XXXX |
4 |
|
E X X X |
XXXX |
5 |
|
- .X X X |
XXXX |
6 |
|
P .X X X |
XXXX |
7 |
|
L .X X X |
XXXX |
8 |
|
H .X X X |
XXXX |
9 |
|
E .X X X |
XXXX |
10 |
|
X X X X. |
XXXX |
11 |
|
X X X .X |
XXXX |
12 |
|
X X .X X |
XXXX |
13 |
|
X .X X X |
XXXX |
14 |
|
.X X X X |
XXXX |
15 |
京公网安备 11011202001138号
