微电网与离网光伏发电系统,两都在很大程度上有一定的相似性,但双不完全相同,尤其是在实际应该方面要注意的问题很多,下面就对两都进行简单的剖析,以方便大家理解应用。
一 微电网
微电网系统是一种新型网络结构,是由分布式电源、负载、储能系统和控制装置构成的系统单元,是一个能够实现自我控制、保护和管理的自治系统,既可以与外部电网并网运行,也可以孤立运行。
微电网系统是相对传统大电网系统的一个概念,是指多个分布式电源及其相关负载按照一定的拓扑结构组成的网络,并通过开关连接至常规大电网。
微电网系统中的核心装备即分布式电源以及储能系统,包括光伏并网逆变器、风力并网逆变器、柴油机、PCS以及BMS等。
近年来,随着微电网系统的快速发展,并网逆变器又被赋予了一种新的定义:分布式光伏电源。它可以作为微电网系统的主电源,成为整个微网系统最核心的技术之一,又由于其电源性质的特殊性(电流源),它又可作为微网系统的补充电源。
PCS,即能源转换系统,是近来年兴起的一种的应用十分灵活、功能十分强大的新型分布式电源,也是一种储能系统。作为一种四象限运行的换流器,它既可以实现并网逆变功能,也可以实现并网整流充电功能,还可以实现离网独立逆变功能。
微电网系统中,各分布式电源的容量配置是有一定原则的,否则的话会造成电源过剩或者电源欠缺。
并网逆变器容量应小于等于总负载容量,以接近负载容量为最佳,不可过小,也不可过高,如果过高,多余的电能无法吸收,易造成系统崩溃。近年来研究结果表明,当并网逆变器容量大于负载总容量时,如果此时有PCS作为支撑源,并网逆变器的多余电能会馈入PCS,使PCS处于“离网充电”状态,这种状态是不太稳定的,目前还没有真正有效的控制手段,因此建议并网逆变器的容量小于等于总负载容量。
PCS容量应设置负载总容量的1.5倍,但是蓄电池的容量需要按照系统能够承受3到5个阴雨天的容量来配置。虽然并网逆变器也可为负载提供电能,但是微网系统大部分时间是运行在夜晚的,此时并网逆变器无法工作,因此微网系统的大部分电能是由PCS提供的,所以PCS的容量配置需要考虑到连续阴雨天以及夜晚的工况。

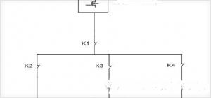
如图1所示为微电网系统的架构图,由并网逆变器与PCS共同并接至系统母线上,同时母线上挂上负载。
(1)当大电网没有脱开时,如果是在白天,系统运行于并网逆变器为主分布式电源的状态,PCS处于给蓄电池充电的状态,以作为备用电源。如果是在晚上,依然由大电网给负载供电,PCS依然作为备用电源给蓄电池充电。
(2)当大电网脱开时,如果是在白天,系统运行于PCS作为支撑源、并网逆变器作为辅助电源的状态;如果是在晚上,则只有PCS作为主电源给系统供电,此时就要求PCS以及蓄电池的容量能够满足负载的长期供电。
二、离网系统
离网光伏发电系统又称为独立光伏发电系统,主要由PV组件,DC/DC充电控制器、离网逆变器以及负载组成,具备独立供电及独立储能功能。离网光伏发电系统多应用于远离大电网的区域,例如戈壁、沙滩、海岛等地区。
离网逆变器属于无源型单相换流装置,只能运行于逆变状态,无法运行于整流状态。其主电路结构与并网逆变器是完全一致的,只是控制方式以及输入输出端的连接对象不同。离网逆变器(三相)的输出应为380V/Hz的交流电。
另外,太阳能电池不同于常规电池,它是一种可认为是恒流源的电池,其输出功率受光照、温度等诸多因素的影响。
如图2所示为离网光伏发电系统主电路图,由PV组件、控制器、离网逆变器以及交流负载组成,如果有特殊需要还可以在控制器端加接直流负载。
离网光伏发电系统属于无源独立发电系统,不需要大电网的参与,因此灵活性与机动性更加优越,这种系统对DC/DC控制器的要求较为严格,必须能够有效的控制充电状态并保证PV组件工作于最大功率点。

离网光伏发电系统典型拓扑图
离网光伏发电系统的容量配置主要集中在离网逆变器与蓄电池的配置上,离网逆变器的容量需要等于1.5倍负载容量,蓄电池容量需要能够承受连续3到5个阴雨天的电量供给,DC/DC控制器的容量需要大于PV组件的总容量,略有冗余。
三、微电网系统与离网光伏发电系统对比
(一)共性
都具备独立供电特性;
都需要储能系统;
都需要为蓄电池匹配最佳容量。
(二)区别
微电网系统属于有源系统,可以与大电网连接,离网光伏发电系统属于无源系统,不能与大电网连接;
微电网系统更加复杂,需要配置的分布式电源较多,离网光伏发电系统只需要控制器及离网逆变器即可;
微电网系统中的储能系统为四象限运行的换流器,可以实现能量双向流动,离网光伏发电系统中的储能系统为单相换流器,不能实现能量双向流动。
(三)实际应用原则
如果应用场合为戈壁、沙滩等比较偏远、且无需人工频繁维护的场合,以离网光伏发电系统为宜,因此这种系统不需要有人值守,可以独立运行,只需要定期维护蓄电池即可。
如果应用场合为靠近大电网、且需要人工频繁维护以及对调度要求交严格的场合,以微电网系统为宜,因为这种系统的各种分布式电源的投切以及运行状态的调度均需要人为干预,有的甚至需要监控系统。
京公网安备 11011202001138号
